London
Hong Kong
Beijing


Projects
About
People
Sustainability
Contact
Privacy

The Oval Partnership Architecture Ltd is the London studio of an international group of architects, urbanists, designers and researchers.

A member of theOctagonpartnership

©The Oval Partnership Architecture Ltd



      


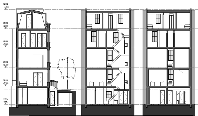
Project Moreton Place
SizeTotal GIA approx 200m2
BriefWhole House Alterations and Refurbishment
Date2024
LocationMoreton Place, London
A whole-house refurbishment of an unusual 1860s terraced house in the Pimlico Conservation Area, part of the 'South Belgravia' estate laid out by Master Builder Thomas Cubitt from 1825. The house had been renovated in the 1990s and had not been touched since. Our proposal, currently at planning application stage, completely reconfigures the basement level as a new light and airy open plan living area with generous stair access from a revised entrance hallway, whilst the intermediate floors are carefully pared back to reveal the original proportions and features of the 1860s rooms.